Top.Mail.Ru
www.croquet-club.com Крокет в Москве.
МОСКОВСКИЙ
КРОКЕТ-КЛУБ
 

Русский крокет

Правила игры, 4-я редакция, с пояснениями, 2024 год (дополнения 2025 года)

С каждым годом игра в крокет начинает пользоваться всё большим успехом. Игра развивается, эволюционирует, правила должны соответствовать текущему динамичному времени. При составлении данной редакции правил учтён опыт игровой практики, мнения игроков и, принимая во внимание характер и цели игры, взято именно то, что является целесообразным, оптимальным и рациональным.

Содержание

Глоссарий.
Введение.
1. Игровое поле.
1.1. Расстановка калиток и колышков.
2. Оборудование для игры.
2.1. Шары.
2.2. Крокетный молоток.
2.3. Калитки.
2.4. Колышки.
2.5. Клипсы.
3. Игра.
3.1. Очередь ходов.
3.2. Пропуск очереди.
3.3. Игра вне очереди.
3.4. Удар.
3.5. Начальный удар.
3.6. «Нулевой» удар.
3.7. Дополнительные удары.
3.8. Крокировка.
3.9. Крокетный удар.
3.10. Столкновение.
3.11. Прохождение калиток.
3.12. Уход шара за пределы игрового поля, аут.
3.13. Попадание шара в колышек.
3.14. Завершение игры.
4. Результат игры.
5. Обязанности игроков.
Дополнительная информация.

 

Глоссарий

Термины, изложенные ниже, перечислены в алфавитном порядке.

Аут – шар, ушедший за пределы игрового поля, пересёк линию границы более чем на половину.

«Боец» – шар, прошедший «мышеловку», имеющий право крокировать.

«В гости» – идти в направлении колышка соперника. Термин, для сообщения направления движения.

«Домой» – идти в сторону своего колышка. Термин, для сообщения направления движения.

«Живой» шар – шар «боец», который можно крокировать.

«Заколоться» – пройти все калитки и попасть своим шаром в свой колышек, то есть, завершить игру.

Игровой шар – шар, которым непосредственно играют в данный момент.

Крокировка (рокировка) – попадание игровым шаром в любой другой «живой» шар, если оба шара «бойцы». После чего, производят крокетный удар из-под ноги, а затем, ещё один дополнительный, свободный удар.

Крокетный удар – удар, который производится после крокировки. Крокирующий шар берут в руку и устанавливают вплотную к крокированному шару, с любой стороны, выгодной бьющему игроку. Затем крокирующий шар прижимают носком ноги к земле и производят удар из-под ноги.

Крокирующий шар – игровой шар «боец», попавший в другой шар «боец», делающий крокировку.

Крокируемый шар – «живой» шар «боец», в который попал игровой шар «боец».

Крокированный шар – крокируемый шар, после попадания в него крокирующим шаром.

«Лягушка» – специальный удар, при котором шар подпрыгивает и перелетает другой шар, стоящий на его пути, иногда используют английский термин «джамп шот» (прыгающий удар).

«Масло», «в масле» – шар в створе калитки или «мышеловки», не завершил прохождение калитки или «мышеловки».

«Мёртвый» шар – крокированный шар относительно крокирующего шара, после крокетного удара. Повторно крокировать «мёртвый» шар запрещено, если такое случается, игрок теряет ход. Все шары становятся «живыми», как только крокирующий шар пройдёт очередную калитку.

«Мышеловка» – две скрещенные калитки в центре игрового поля, параллельны и перпендикулярны осям площадки.

Не правильная калитка – калитка, которая не по очереди прохождения.

Неправильная сторона калитки – сторона, противоположная проходу калитки, встречное неправильное направление прохода.

«Нулевой» удар или вертикальный – прикосновение молотком шара. Если игроку невыгодно сдвигать шар с позиции, может ограничиться просто прикосновением к нему молотком. Также ошибочные действия игрока могут стать «нулевым» ударом, касание молотком шара приравнивается к удару.

Правильная калитка – очередная калитка, которую необходимо пройти в данный момент, в соответствии с маршрутом прохождения.

Правильная сторона калитки – сторона правильной калитки, с которой следует проходить калитку в соответствии с маршрутом прохождения.

«Пропих» – прохождение шаром «правильной» калитки с «правильной» стороны, после удара в него другим шаром.

«Пропихнутый» шар – шар, прошедший калитку от удара в него другим шаром. Проход «пропихнутому» шару засчитывается, но игроку, которому принадлежит этот шар, не даётся дополнительный удар.

Противоположный колышек – колышек стороны соперника.

«Разбойник» – шар, прошедший все калитки, но не «заколовшийся».

Свободный удар – удар, который делает игрок в любом направлении на своё усмотрение.

Столкновение – попадание игровым шаром в любой другой шар, если оба шара или один из них «юнга». Или отскочивший шар (любой) попадает в третий (любой). Столкновение не даёт дополнительный удар.

Сторона (игроки стороны) – соперники, команда или соперник, при одиночной игре.

Ход – действие игрока в свою очередь во время игры. Ход может состоять из одного или нескольких ударов.

«Юнга» – шар, вступивший в игру, но не прошедший «мышеловку», не имеет права на крокировку. Любое взаимодействие с другими шарами – столкновение.

 

Схема 1. Стандартная площадка для игры в Русский крокет.
Схема 1. Стандартная площадка для игры в Русский крокет.

Введение

Игра в крокет проходит между двумя сторонами, каждая из которых состоит из двух игроков в парном разряде или одного игрока в одиночном разряде.

Игра проходит на площадке размером 5 на 11 метров.

В игре используются специальные крокетные молотки, с помощью которых ударами проводятся шары через серию расставленных калиток в определённом порядке и направлении. Игроки совершают свои ходы по очереди, делая удары по статичному шару, с того места, где он остановился.

Игра состоит из серии ходов, каждый из которых состоит из одного или нескольких ударов.

Разрешается наносить удары только ударной плоскостью молотка.

Запрещается наносить удары боковой стороной молотка и рукояткой; толкать шары – шары перемещаются только ударами.

На протяжении всей партии игроки играют строго по очереди, каждый своим шаром. Игроки с одной стороны играют синим и чёрным шарами, а игроки другой стороны – красным и жёлтым (или шары с одной и двумя чёрными полосками против шаров с одной и двумя красными полосками). Если игра одиночная, игроки каждой стороны играют двумя шарами, соблюдая ту же очерёдность ходов, как в парной игре: синий, красный, чёрный, жёлтый (одна красная полоса, одна чёрная, две красные, две чёрные полосы).

Особенностью Русского крокета является то, что соперники идут навстречу друг другу, начиная и завершая игру на противоположных сторонах игровой площадки.

Задача игроков, соблюдая очерёдность ходов, первыми провести шары от своего колышка до противоположного и обратно, пройдя все калитки, расставленные в определённом порядке, как показано на схеме 3, и ударить в свой колышек шаром, тем самым завершить игру. Таким образом, победившая сторона набирает 36 очков: 12 очков за калитки, 4 за «мышеловку» (два прохода скрещенных калиток) и 2 за попадание в колышки, то есть каждый шар может заработать по 18 очков. «Пропихнутому» шару очко в зачёт не идёт, даётся очко за «пропих» своего второго шара. По упрощённой системе подсчёта, учитываются только победы в партиях: победа даёт 2 очка, ничья –1 очко, проигрыш – 0.

Крокет – игра тактическая, и общий успех команды зависит от согласованной игры всех игроков команды (если игра парная), а не от удачи одного из них. Играть в команде – взаимодействовать с партнёром, маневрировать как своими, так и шарами противника, зарабатывая очки за прохождение калиток, продвигаясь к своему колышку, чтобы финишировать первыми.

Перед началом игры, победитель жеребьёвки может выбрать, играть первым или вторым, выбрать какими шарами будет играть. У соперника – выбор, с какой стороны площадки играть.

Во время игры, после завершения своего хода, игроки обязаны смотреть на бьющего игрока, чтобы не создавать ему помеху, стоя на его пути, и соблюдать технику безопасности (п. 5.8.).

1. Игровое поле

Игра проходит на специально подготовленной ровной площадке шириной 5 метров и длиной 11 метров, с чётко отмеченной границей и с расстановленными в определенном порядке 10-ю калитками (в центре поля – пара калиток крест-накрест – «мышеловка») и 2-я деревянными колышками, см. схемы 1 и 2.

Поверхность площадки должна быть ровной, без выбоин и возвышений, которые могут повлиять на траекторию движения шаров: короткостриженый газон, утрамбованный песок или грунт, или искусственное покрытие (искусственный газон).

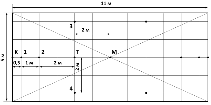
1.1. Расстановка калиток и колышков на площадке производится по определенному порядку следующим образом, см. схему 2.

Схема 2. Площадка для игры в Русский крокет. Разметка.
Схема 2. Площадка для игры в Русский крокет. Разметка.

Из угла в угол площадки размером 5 на 11 метров, намечаются линии диагоналей. Для разметки используют шнур. Точка пересечения этих линий будет центром площадки (точка «М»), над этой точкой ставится «мышеловка» – две калитки крест-накрест параллельно сторонам площадки. Все точки на схеме – центры калиток.

В центре короткой границы – точка «К», устанавливается колышек.

От точки «К», на центральной длинной оси поля отмеряется 0,5 м – точка «1», над этой точкой устанавливается первая калитка параллельно короткой границе.

От точки «1» по центральной длинной оси отмеряется 1 м – точка «2», над ней устанавливается вторая калитка параллельно короткой границе и первой калитке.

От точки «2» (или «М») по центральной длинной оси поля отмеряется 2 м – точка «Т». От точки «Т» в стороны к длинным границам отмеряется по 2 м – точки «3» и «4», над этими точками устанавливаются калитки, так же параллельно.

Вариант нахождения центральной точки «М» без проведения диагоналей. От точки «Т» по центральной длинной оси поля отмеряется 2 м – точка «М».

На второй половине площадки оборудование, колышек и калитки расставляются аналогично, но зеркально относительно центральной короткой оси поля.

Границы игрового поля чётко прочерчиваются или натягивается белый шнур, лежащий на земле.

Аут (пересечение границы, уход шара с поля) – неотъемлемая часть игрового процесса, заставляющая игрока быть более дисциплинированным, собранным, анализировать и контролировать свои действия, силу ударов.

Размеры расстояний между калитками на игровой площадке достаточно простые. Иногда, играя в парке, на даче или на пляже, единицей измерения может быть крокетный молоток, он меньше метра, но отложив правильно расстояния: половина молотка (0,5), молоток (1), два молотка (2) и так далее, вы сохраните главное – геометрию поля, несмотря на то что поле будет чуть меньше.

На игровое поле разрешается выходить только в обуви на плоской подошве, чтобы не нанести ущерб поверхности.

2. Оборудование для игры

Для игры в Русский крокет используют специальные молотки с длинными ручками, шары, колышки и калитки. Молотки, шары и колышки чаще изготавливают из дерева, но бывают и полимерные, калитки – металлические, изготавливают из круглого прута.

2.1. Шары – 4 штуки, диаметр – 92 мм, синего, красного, чёрного и жёлтого цвета (международный стандарт).

Также, шары маркируют полосами: шар с одной красной полосой и шар с двумя красными полосами для первой команды, шар с одной чёрной полосой и шар с двумя чёрными полосами для второй команды. Шары могут быть любого цвета или маркировки, главное, чтобы было очевидное отличие, так как каждый игрок играет только своим шаром в парной игре и двумя шарами в одиночной игре.

2.2. Крокетный молоток состоит из длинной ручки и ударной головки (ударной части). Длина молотка – 90 см ± 10 см; рукоятка прикреплена в центре ударной головки под прямом углом, головка может быть прямоугольной или цилиндрической: длина – 16 см, диаметр – 6 см, ударные плоскости параллельные, допускается одна выпуклая для крокетных ударов из-под ноги.

2.3. Калитки (воротики, воротца) 10 штук (две из них скрещены под прямым углом – «мышеловка»); П-образные, из металлического круглого прута диаметром – 10 мм. Внутреннее расстояние между параллельными стойками – 18 см, от поверхности игрового поля до верха перекладины – 30 см, плюс установочные – 10 см, вбиваются в поле. Перекладина должна быть прямой, под прямым углом к боковым опорам, которые параллельны между собой. Калитки полностью окрашены в белый цвет, либо могут быть не окрашены.

Калитки на поле должны иметь одинаковые размеры, быть установлены вертикально и надёжно закреплены на игровом поле (вбиты).

Размеры оборудования для игры в Русский крокет: колышек, шар, калитка, молоток.
Размеры оборудования для игры в Русский крокет: колышек, шар, калитка, молоток.

2.4. Колышки: 2 штуки, диаметр – 2 см, высота над уровнем поля – 40 см; должны быть установлены вертикально; могут быть окрашены в белый цвет, верх может быть маркирован красным и синим (или чёрный) цветами, тем самым обозначая стороны соперников, иногда маркируют в верхней части колышка разноцветными полосами, делая подсказку игрокам – очерёдность ходов, сверху вниз: синяя, красная, чёрная и жёлтая полосы.

2.5. Клипсы (прищепки, зажимы, «всадники») – необязательный элемент. Изготовлены из пластика, металла или других материалов. Цвета зажимов идентичны цветам шаров, используемых в игре. Зажимы используются как подсказка, для маркировки следующей калитки, которую следует пройти игроку. Крепится на верхнюю перекладину, когда идут «в гости» и на вертикальной штанге, ближе к верху, когда идут «домой».

В начале каждого хода очередная калитка должны быть отмечена клипсой соответствующего цвета. Когда шар проходит отмеченную калитку, игрок должен снять свою клипсу и в конце хода поместить её на следующую по очереди калитку. Это делается для ориентации игроков, кто куда идёт.

3. Игра

Соперники начинают игру с противоположных сторон игрового поля. На схеме показаны пути движения соперников. Шар, не прошедший «мышеловку» (4), называется – «юнга». Шар, прошедший «мышеловку» – «боец». Шар, прошедший все калитки (1–14) – «разбойник».

Схема 3. Движение игроков команд по полю в Русском крокете.
Схема 3. Движение первой команды (игрока) и второй команды (игрока). Обратите внимание, в начале игры, при движении в сторону соперника («в гости»), третья калитка – на право. Десятая калитка (третья от колышка соперника), когда возвращаемся к своему колышку («домой») – налево.

3.1. Очередь ходов

3.1.1. В течение всей игры игроки обязаны соблюдать строгую очерёдность ходов. Каждый игрок играет только своим шаром, если игра командная. Или шарами, если одиночная игра двумя шарами, по два шара с каждой стороны.

3.1.2. Порядок игры. По шарам определяется очерёдность ходов. Играют синий и чёрный против красного и жёлтого. Первым играет игрок с синим шаром, вторым – с красным, потом – с чёрным и затем – с жёлтым шаром. Синий, соответственно, идёт за жёлтым.

Или, первым играет игрок шаром с одной красной полосой, за ним игрок с одной чёрной полосой, затем – с двумя красными, потом игрок с шаром, который маркирован двумя чёрными полосами.
3.1.3. Перед началом игры, проводят жеребьёвку. Победитель жеребьевки может выбрать, играть первым (синий и чёрный шары) или вторым (красный и жёлтый шары). У соперника – выбор, с какой стороны площадки играть.

Или, при маркировке полосами, выбор, игра шарами с красными или с черными полосами. Соперник – выбирает ту или иную половину площадки.

3.2. Пропуск очереди

Если игрок пропустил свой ход, то он теряет право на него до следующей своей очереди. Так же, на игрока накладывается штраф – пропуск очереди, если он сыграл вне очереди см. п.3.3.2.

3.3. Игра вне очереди

3.3.1. Если игрок сыграл своим шаром вне очереди, и ошибка обнаружена, все достигнутые этим ударом результаты аннулируются: игровой шар и все им сбитые шары ставятся на прежние места. Ход заканчивается.

3.3.2. Если игрок сыграл своим шаром вне очереди и после этого был сыгран дополнительный удар, или следующий игрок приступил к своему ходу, то положение шаров, достигнутое в результате этого, не меняется, но игрок, допустивший ошибку, штрафуется – лишается права на удар в следующей очереди, пропускает свой очередной ход.

3.3.3. Если один из шаров «закололся», завершил игру, то второй шар играет ходы за вышедший из игры шар, то есть, через каждый ход соперника.

3.4. Удар

3.4.1. При ударе, молоток можно держать любым способом. Разрешается наносить удары только ударными плоскостями (и, если есть, выпуклой, для крокетных ударов из-под ноги). Запрещается наносить удары боковой стороной молотка и рукояткой.

3.4.2. Удар по шару должен быть именно ударом, ни в каком случае не толчком или движком. Под движком надо понимать такой удар, когда молоток, производя удар по шару, проходит некоторое расстояние в соприкосновении с ним.

3.4.3. Касание молотком шара приравнивается к удару, то есть, если, готовясь к удару, игрок коснётся шара, то считается, что удар уже сделан.

3.4.4. Касаться молотком чужих шаров запрещено. Если, готовясь к удару, игрок коснется чужого шара, то он теряет право на удар, а чужой шар, если он был сдвинут с места, ставится на прежнюю позицию.

3.5. Начальный удар

Ввод шара в игру. Первый удар производится по шару, установленному между своим колышком и первой калиткой, на расстоянии не ближе 20 см до первой калитки (на длину ударной части молотка), в любом месте площадки, но не ближе условной стартовой линии.

Начальный удар. Русский крокет.
При начальном ударе шар ставится в любом месте между колышком и первой калиткой, но не ближе к границе калитки, чем на 20 см (удобно отмерять ударной частью молотка).

3.6. «Нулевой» удар или вертикальный

Если игроку невыгодно сдвигать свой шар с позиции, можно ограничиться прикосновением к нему молотком. Касание молотком шара приравнивается к удару. Игрок опускает вертикально молоток на шар, делает касание.

Дополнение (08.2025): Игрок имеет право воспользоваться возможностью совершения нулевого удара лишь единожды в одной позиции шара.
Это значит, что после первого исполнения нулевого удара в определенной позиции, повторное применение этого удара в той же позиции становится недопустимым. Игрок обязан изменить позицию своего шара.

3.7. Дополнительные удары

Игроки совершают свои ходы по очереди. Первоначальный ход игрока состоит только из одного удара, однако игрок может получить право на дополнительный удар (ход может содержать несколько ударов) в случаях:

3.7.1. Если игровой шар проходит калитку, в соответствии с маршрутом и в правильном направлении, игрок получает право на ещё один удар. Дополнительные удары суммируются, если шар проходит с одного удара две калитки – 1 и 2, 6 и 7 (см. схему 4), 8 и 9, 13 и 14, соответственно, игрок получает 2 дополнительных удара.

3.7.2. Если игрок, имея два дополнительных удара, после прохождения калиток 1 и 2, с одного удара проходит калитку 3, то он имеет только один удар за прохождение калитки 3, дополнительные удары за прохождение калитки не суммируются, кроме вышеуказанных (см. п. 3.7.1).

3.7.3. Если шар проходит «мышеловку», проход под углом 45o относительно осей поля (см. схему 3), игрок получает право на два дополнительных удар. Проход в другом направлении через «мышеловку», не считается прохождением, в таком случае, игрок, следующим ходом, должен выйти на позицию для прохождения «мышеловки» правильным маршрутом.

Схема 4. Дополнительные удары за прохождение калиток.
Схема 4. Дополнительные удары за прохождение калиток. На схеме пронумерованы калитки-«к» только в одну сторону 1–7 (см. схему 3). Суммируются только дополнительные удары за прохождение пар калиток, ближних к колышкам, 1 и 2, 6 и 7 (8 и 9, 13 и 14, соответственно, см. схему 3). Во всех остальных случаях дополнительный удар даётся за последний проход или удар по колышку, то есть, не суммируются. Геометрия поля позволяет проходить с одного удара, к примеру, калитку 3, 4 («мышеловка») и 5, но дополнительный удар даётся только за проход последней калитки – 1 дополнительный удар за калитку 5. Если игрок прошёл калитки 3 и 4 («мышеловка») с одного удара, даётся 2 дополнительных удара за «мышеловку», а не три (1 удар за калитку 3, 2 удара за «мышеловку» - не суммируются). Если игрок прошёл «мышеловку» и калитку 5 с одного удара, то игрок получает всего один дополнительный удар за проход калитки 5. Аналогично считаются дополнительные удары по пути «домой», за калитки 8, 9, 10, 11 («мышеловка»), 12, 13 и 14.

3.7.4. Удар о противоположный колышек дает, как и проход калитки, право на один дополнительный удар. Дополнительный удар за попадание в колышек также не суммируется с другими дополнительными ударами, полученными за прохождение калиток.

Если игрок одним ударом прошёл калитки 6 и 7 и попал в колышек противоположной стороны (см. схему 3), то дополнительный удар даётся только один, за колышек. Если шар, пройдя калитки 6, 7, ударился о колышек и прошёл калитку 8 (обратное направление) – даётся один удар за проход калитки 8, за колышек дополнительный удар уже не даётся; если с отскока от колышка шар прошёл калитки 8 и 9, то даётся два дополнительных удара, за проход калиток 8 и 9, за колышек дополнительный удар не даётся.

3.7.5. Если игровой шар «боец» делает крокировку, ударяется в другой шар «боец», получает два дополнительных удара – крокетный удар и свободный (см. п. 3.8 и 3.9).

3.8. Крокировка

3.8.1. Крокировать – значит попасть своим шаром в другой шар. Если шар игрока ударяет другой шар, игрок получает право на два дополнительных удара, крокетный удар и свободный удар.

3.8.2. Крокировать можно шары чужой команды, так и свой второй шар.

3.8.3. Крокировать можно только все «живые» шары «бойцы», но только «бойцом». После крокировки и крокетного удара, крокированный шар считается «мёртвым» относительно крокирующего шара. Повторно его можно крокировать только после того, как крокирующий шар пройдёт очередную калитку, после прохода, все шары становятся «живыми».

3.8.4. Крокировать всегда имеет право «разбойник». «Разбойник» – шар, прошедший все калитки, но не «заколовшийся» – не ударившийся о свой колышек. «Разбойник» может крокировать сколько угодно шаров, но один и тот же шар лишь один раз в свой ход.

3.9. Крокетный удар

Крокетными ударами свои шары выводят на благоприятные позиции, шары соперника, наоборот, выбивают на неблагоприятные позиции.

3.9.1. После крокировки (п.3.8) игрок берёт руками свой шар и ставит вплотную к крокированному шару (в который попал) с любой нужной ему стороны, делает крокетный удар из-под ноги – прижимает свой шар к земле ногой и ударяет по нему так, чтобы крокированный шар пошел в желаемом направлении, а свой шар остался под ногой. После этого игрок получает право на ещё один дополнительный «свободный» удар по своему шару.

Крокетный удар из-под ноги. Русский крокет.

3.9.2. Если при крокетном ударе свой шар выскочит из-под ноги бьющего, игрок теряет право на дополнительный свободный удар. Ход заканчивается.

Дополнение (10.2024): Шар ставится на место, с которого производился удар. Если шар прошел калитку, этот проход не засчитывается. Если шар попал в другие шары, и они сдвинулись со своих позиций, они также ставятся на свои места.
Ход переходит следующему игроку.

3.9.3. Шар, завершивший крокетный удар, тем или иным путём коснётся «мёртвого» шара – ход заканчивается.

Крокировка. «Живой» и «мёртвый» шар. Русский крокет.
Пример. 1. Крокировка. Красный шар «боец» попадает в Синий шар «боец». 2. Красный ставится в контакт с любой нужной стороны к Синему крокированному шару. Производится крокетный удар из-под ноги. 3. Синий, после крокетного удара становится «мёртвым» относительно Красного шара. 4. После прохождения Красным шаром калитки, все шары на поле для него становятся «живыми», которые можно крокировать.

3.10. Столкновение

3.10.1. Попадание своим шаром в другой шар, при комбинации «юнга» – «юнга», или «боец» – «юнга», или «юнга» – «боец», не даёт дополнительных ударов, после столкновения ход заканчивается, но, если игрок до столкновения имел дополнительные удары, он играет их, но без действий, которые влечёт крокировка. Столкновение используют для изменения позиции шаров.

3.10.2. Столкновением считается взаимодействие шаров, которое произошло от отскока шара, при попадании в него шаром, в третий шар, даже если они оба «бойцы». Такое столкновение не влечёт дополнительных действий.

3.11. Прохождение калиток

3.11.1. Калитка считается пройденной, если шар полностью пройдёт под ней. Шар, ударившийся о боковые стойки калитки и прошедший калитку, считается сыгранным правильно. Чтобы определить, прошёл шар калитку или остался в ней («застрял в масле»), когда положение шара не очевидно, проводят ручкой молотка вдоль плоскости калитки. Если ручка молотка даже слегка заденет шар, считается, что шар находится «в масле».

Определение прохождения шара калитки. Русский крокет.
Определение прохождения шара, если визуально не очевидно, шар прошёл, стоит перед калиткой или «застрял в масле» при помощи рукоятки молотка, проводя рукояткой молотка по плоскости калитки или «мышеловки». 1. Шар «в масле» калитки. 2. Шар «в масле» в «мышеловки».

3.11.2. Если шар остановился в створе калитки («застрял в масле»), полностью не пересёк линию калитки, а дополнительного удара нет, ход игрока закончился. Следующим очередным ходом игрок должен выбить шар из ворот в обратном направлении движения шара по маршруту, после чего его ход заканчивается. Но если при выбивании шара «из масла» происходит крокировка, то игра продолжается согласно п.3.8 и 3.9. Данное правило распространяется только если это «правильная» калитка, через которую следует пройти согласно маршруту. Походы через другие калитки и остановки в них, приравниваются к игре, как в других местах игровой площадки.

3.11.3. Если шар остановился в «мышеловке» («застрял в масле»), не прошёл «мышеловку», а дополнительного удара нет, ход игрока закончился. Следующим очередным ходом игрок должен выбить шар из «мышеловки» в обратном направлении движения шара по маршруту или в стороны, после чего его ход заканчивается. Но если при выбивании шара «из масла» происходит крокировка, то игра продолжается согласно п.3.8 и 3.9. Данное правило распространяется только если «мышеловку» следует пройти по очереди согласно маршруту.

Выбивание застрявшего шара. Русский крокет.
1. Если нет дополнительного удара для завершения прохода остановившегося шара «в масле». Застрявший шар «в масле», выбивается в следующем ходе в обратном направлении прохождения калитки. 2. Если нет дополнительного удара для завершения прохода остановившегося шара «в масле». Выбивание застрявшего шара в «мышеловке», в следующем ходе, разрешено в трёх направлениях: в обратном направлении и в стороны.

3.11.4. Если игрок имеет ещё один дополнительный удар, а шар остановился в створе калитки или «мышеловки», «застрял в масле», то игрок имеющимся дополнительным ударом завершает прохождение калитки или «мышеловки», тем самым зарабатывает ещё дополнительные удары.

3.11.5. Игрок имеет право своим игровым шаром пробить («пропихнуть») любой другой шар через калитку или «мышеловку». В такой ситуации проход калитки засчитывается «пропихнутому» шару, но этому шару не даётся дополнительный удар. Если шар игрока, пробив другой шар через калитку, сам не прошёл калитку, то ход заканчивается, если нет ранее полученных дополнительных ударов.

Пропих. Русский крокет.
Пример. Красный игровой шар, попадает в Жёлтый, стоящий «в масле». Проход Жёлтому засчитывается, но ему не даются дополнительные удары. Если Красный и Жёлтый «бойцы» и Жёлтый «живой» шар, произошла крокировка, после чего производятся соответствующие действия, согласно п.3.8 и 3.9; если один из шаров, или оба «юнги», произошло столкновение (п.3.10), то ход заканчивается, если нет других дополнительных ударов.

Пропих. Русский крокет.
Пример. Красный игровой шар, попадает в Синий, который в свою очередь, ударяет Жёлтый, стоящий «в масле». Проходы Синему и Жёлтому засчитываются, но им не даются дополнительные удары. Если Красный и Синий «бойцы» и Синий «живой» шар, произошла крокировка, после чего производятся соответствующие действия, согласно п.3.8 и 3.9; если один из шаров, или оба «юнги» – столкновение, ход заканчивается, если нет других дополнительных ударов. Взаимодействие Синего и Жёлтого – столкновение, а не крокировка, даже если оба шара «бойцы» (п.3.10.2).

3.11.6. Если игровой шар, попадает в шар, застрявший «в масле» или стоящий перед калиткой (поправка, дополнение 08.2025), и они оба «бойцы» – произошла крокировка, производятся соответствующие действия (п.3.8 и 3.9). Прохождение калитки засчитывается шару, в который попали, если шар прошёл «правильную» калитку с «правильной» стороны. Игровому шару, если он пролетел в калитку, проход не засчитывается, так как крокировка первична, проход был вторым событием (поправка 08.2025, ранее крокирующему шару проход засчитывался).

3.11.7. Запрещается проводить шар через очередную калитку, которую надо пройти, в обратном направлении пути, с «неправильной» стороны для дальнейшего прохождения в правильном направлении. Выход на позицию делается в обход калитки. Через все остальные калитки можно проходить, как угодно. Если игрок пробивает свой шар и проходит с «неправильной» стороны, он теряет ход и все сдвинутые шары возвращаются на свои позиции. Если шар прошёл калитку с «неправильной» стороны от воздействия на него другим шаром, «пропих» (см. п.3.8 или п.3.10.2), то, никаких санкций не применяется к этому шару.

3.12. Уход шара за пределы игрового поля, аут

3.12.1. Если игровой шар выкатился за пределы игрового поля, ушёл в аут, или более половины шара пересекло границу, игрок теряет ход. В следующий ход игрок выставляет свой ушедший шар на поле, на расстоянии 20 см (или на длину ударной части молотка) от точки на границе, где он ушёл.

3.12.2. Если после столкновения шар вылетел за пределы игрового поля, или более половины шара пересекло границу, игрок, чей шар ушёл в аут, начинает свой ход с выставления своего шара на игровое поле, на расстоянии 20 см (или на длину ударной части молотка) от точки на границе, где он ушёл.

Выставления шара на игровое поле. Русский крокет.

3.12.3. Если после крокировки крокирующий шар выкатился за пределы игрового поля, а на поле остался крокируемый шар (в который попали), ушедший крокирующий игровой шар берётся в руку и устанавливается вплотную к крокируемому шару с нужной стороны для крокетного удара (п. 3.9). Если крокированный шар стоит близко к границе так, что игровой шар нельзя поставить на игровое поле для крокетного удара (игра из аута запрещена), то крокированный шар выставляется как описано в п.3.12.4.

Крокировка. Русский крокет.
Крокирующий шар (которым играют, Красный на схеме) попадает в другой шар, делает крокировку и уходит за пределы поля.
Все действия, как при обычной крокировки (п. 3.9).

3.12.4. Если после крокировки крокируемый шар (в который попали) вылетел за пределы игрового поля (аут), крокированный шар выставляется на поле, на расстоянии 20 см (или на длину ударной части молотка) от точки на границе, где он ушёл. Крокирующий шар берётся в руку и устанавливается вплотную с крокируемому шару с нужной стороны, и производится крокетный удар (п.3.9).

Крокировка. Русский крокет.
Крокируемый шар (в который попали, Синий на схеме) уходит за пределы поля, выставляется на расстоянии 20 см (на длину ударной части молотка) от границы, от точки выхода (см. п.3.12.2). Далее все действия, как при обычной крокировки (п. 3.9).

3.13. Попадание шара в колышек

Колышек является таким же атрибутом игры, как калитки.

3.13.1. Попадание в противоположный колышек шаром, после прохождения калитки 7 (см. схему 3), даёт дополнительный удар.

3.13.2. Попадание в свой колышек, после прохождения всех калиток (см. схему 3), игрок завершает игру, шар удаляется с поля.

3.13.3. Если шар попадает в свой колышек, не пройдя все калитки по маршруту, то для играющего этим шаром, игра начинается снова с первой калитки в статусе «юнги», когда подойдёт очередь хода, независимо от того, каким образом это произошло: игрок ударом направил свой шар в колышек, или это произошло от попадания другим шаром, или был направлен крокетным ударом (см. п.3.9).

3.14. Завершение игры

3.14.1. Партию выигрывает сторона, шары которой первыми пройдут весь путь, через все калитки, и коснутся своего колышка, то есть «заколются». Финиш определяется по второму шару.

3.14.2. Игра проходит тремя партиями. Завершив партию, команды меняются сторонами площадки.

3.14.3. Если команда (игрок) выиграла две партии подряд (2:0), то третью партию не играют.

4. Результат игры

4.1. Максимальное количество, которое может набрать команда – 36 очков: 12 очков за калитки, 4 за «мышеловку» (два прохода, 2+2) и 2 за попадание в колышки (1+1), то есть каждый шар может заработать 18 очков. «Пропихнутому» шару очко в зачёт не идёт, даётся очко за «пропих» своего второго шара, в итоге команда получает те же 36 очков, разница в баллах у игроков команды.

4.2. По упрощённой системе подсчёта, учитываются только победы в партиях: победа даёт 2 очка, ничья – 1 очко, проигрыш – 0.

Ничья в партии происходит, если после завершения игры первой стороной, вторая сторона имеет свой очередной ход, который завершается успехом.

В финале игры на поле остаётся два шара противоположных сторон. Игрок первой стороны «закалывается», завершает игру, у игрока второй стороны последний очередной ход, если удар успешный, пройдены все калитки и попадание в свой колышек – партия завершается ничьёй.

4.3. Если игра лимитирована по времени, время вышло, но никто не «закололся», подсчёт очков описан в п. 4.1.

5. Обязанности игроков

5.1. Игроки несут совместную ответственность за проведение игры и соблюдение правил в отсутствие судьи.

5.2. Игрок, ожидающий свой ход, не обязан следить за игрой.

5.3. Игрок имеет право спросить соперника о состоянии игры в любое время, и соперник должен ответить как можно полнее.

5.4. Если соперник сообщает информацию, которая оказывается неверной, и это повлияло на ход игры, игрок может потребовать переиграть с того момента, когда игрок выбрал бы другую тактику, зная правильную ситуацию.

5.5. Игроки должны информировать друг друга о дополнительных ударах, если кто-то ошибочно решил, что его ход закончен.

5.6. Предупреждать о неверных действиях, которые планирует совершить игрок, к примеру, пройти «неправильную» калитку.

5.7. Не создавать помех играющему, не перекрывать путь, не отвлекать и т.д.

5.8. Игроки обязаны соблюдать технику безопасности. Не перемещаться по игровой площадке задом, так как можно нанести ущерб своему здоровью, наткнувшись на калитки, колышки или шары, если возникла необходимость такого движения, к примеру, для прицеливания, обязательно убедитесь, что пространство сзади свободно от препятствий. Следить за действиями бьющего игрока, чтобы не получить удар молотком или шаром.

Текст подготовлен Комитетом РК ШРК Московского крокетного клуба
руководитель Илюхин Юрий Александрович croquet@ya.ru www.Croquet-Club.Com 2024-2025.

 

Как играть в крокет? Советы и рекомендации, как играть в Русский крокет.

 

Дополнительная информация

Московский крокетный клуб. Крокет в Москве.
Новости, анонсы,
расписание игр
Русский крокет. Правила игры. Скачать в формате PDF
Скачать в формате PDF
Русское Общество Крокета.
Крокет в России,
от Российской империи
до наших дней

Удачи и побед!

Школа Русского Крокета

Наборы для игры в крокет от производителя. Купить. Купить крокет.

 

Пройдите тест на знание правил Русского крокета, проверка базовых знаний.

Тест на знание правил Русского крокета, проверка базовых знаний.

 

Советы и рекомендации, как играть в Русский крокет.

Как играть в крокет?

 

 

 

 

 

Старая версия сайта

 

Главная | О крокете | Правила | Клуб | Игровое оборудование | Контакты
   
     © Croquet-Club.Com 2006-2026   Московский крокет-клуб
  Top.Mail.Ru
↑ Наверх